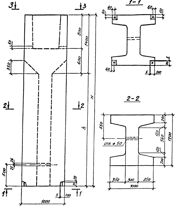
Блок-стакан верхний ВБ 10-12-57-1 представляет собой элемент железобетонных конструкций, используемый для соединения и укрепления других элементов. Он имеет специальную форму, которая обеспечивает надежное соединение с нижним блок-стаканом. Изготовлен из высококачественного железобетона, блок-стакан обладает высокой прочностью и долговечностью.
Блок-стакан верхний ВБ 10-12-57-1 применяется в строительстве железобетонных конструкций, таких как здания, мосты, туннели и другие сооружения. Он используется для создания устойчивых и надежных соединений между элементами конструкций, обеспечивая им необходимую прочность и устойчивость к нагрузкам. Блок-стаканы широко применяются в строительстве благодаря своей простоте монтажа и высокой эффективности.









